Anunț privind consultarea publică a cererii privind emiterea acordului de mediu.
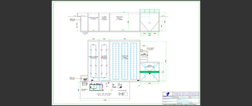
Primăria orașui Stăuceni informează despre cererea depusă de F.P.C „Rogob„ SRL privind emiterea acordului de mediu privind construcția unei stații de epurare a apelor uzate ca urmare a desfășurării activității fabricii pe bunul proprietate privată cu o suprafață de 045 ha, situate în satul Goianul Nou, or. Stăuceni, municipiul Chișinău.
Recomandările pe marginea infoemației prezentată public pot fi expediate pe adresa Primăriei Stăuceni, or Stăuceni, str. Alexei Mateevici, 13, pe adresa electronică: primaria.stauceni@apl.gov.md, sau la numărul de telefon 022 32 69 76 până la data de 18.11.2024.
Informația publică este disponibilă pe pagina web oficială a Primăriei orașului Stăuceni, www.stauceni.md sau la sediul Primăriei pe adresa or. Stăuceni, str. Alexei Mateevici, 13.




