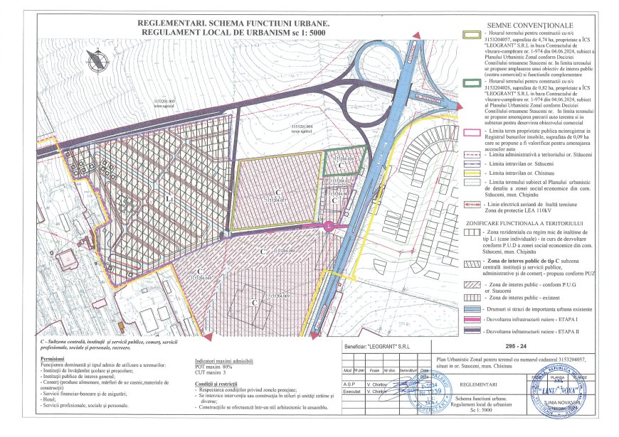
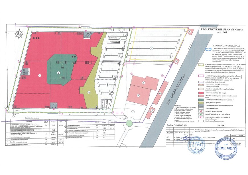
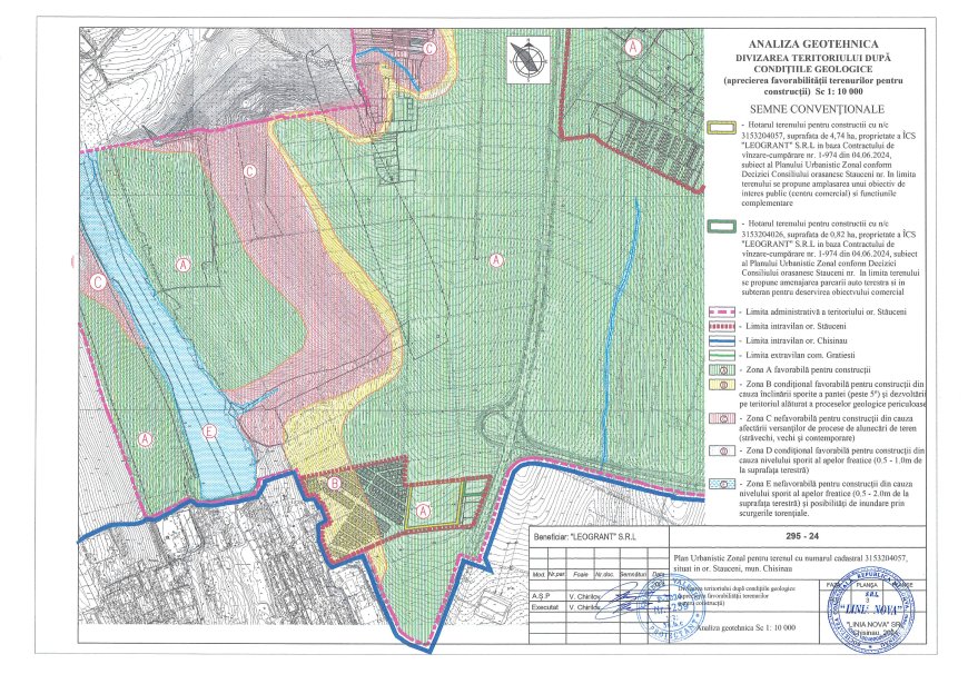
Anunț privind consultarea publică a Planului Urbanistic Zonal
Primăria orașului anunță consultarea publică a Planului Urbanistic Zonal pentru terenul cu numărul cadastral 3153204057 situat în or. Stăuceni, mun. Chișinău, obiect nr. 295-24, elaborat în temeiul Deciziei Consliului orășenesc Stăuceni nr. 6/11 din 19 iulie 2024.
Consultarea publică, deschisă, va avea loc vineri, 22 noiembrie 2024, ora 15:00 în incinta sălii de ședințe a primăriei.
Recomandările pe marginea infoemației prezentată public pot fi expediate pe adresa Primăriei Stăuceni, or Stăuceni, str. Alexei Mateevici, 13, pe adresa electronică: primaria.stauceni@apl.gov.md, sau la numărul de telefon 022 32 69 76 până la data de 26.11.2024.
Informația publică este disponibilă pe pagina web oficială a Primăriei orașului Stăuceni, www.stauceni.md sau la sediul Primăriei pe adresa or. Stăuceni, str. Alexei Mateevici, 13.




